The Lighthauz

Where Modern Luxury Meets Waterfront Living.

Rise above Gelugor’s most vibrant new city – The Light City.

2030

Completion Year

673

Units

Condominium

The Lighthauz

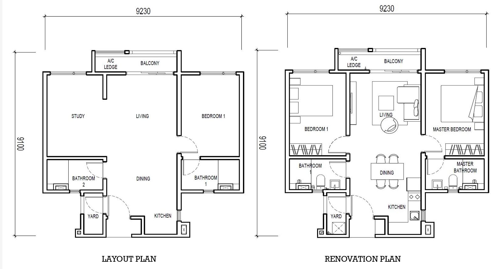
Lighthauz is a freehold serviced residence by EXSIM, strategically located within The Light City, Gelugor, one of Penang’s most anticipated waterfront developments. Designed for modern urban lifestyles, the project offers functional layouts from 732 to 1,001 sq ft, ideal for both homeowners and investors seeking a premium address with long-term growth potential.
Situated next to the upcoming Light City Convention Centre, retail mall, and future arts & cultural district, Lighthauz benefits from exceptional connectivity, lifestyle amenities, and the master-planned transformation of the surrounding seaside precinct. With 673 units across 2 towers, the development blends contemporary living with high accessibility to Penang Bridge, Bayan Lepas FTZ, and Georgetown.

Starting From RM

864500

onwards

Features of the Property

  • Part of The Light City Masterplan – 整个区域未来将成为槟城最大 waterfront integrated development(会展中心、mall、艺术区)。

  • All Units with Efficient Squarish Layouts – 732–1001sf,无浪费空间,适合投资与自住。

  • City & Partial Sea View Orientation – 大多数单位可享受城市与部分海景景观(其他网站一般不会写)。

  • Walking Distance to Future Convention Centre & Retail Mall – 未来增值点,位置优势明显。

  • EXSIM Signature Modern Design – 项目采用 EXSIM 一贯的 contemporary façade、酒店式大堂与 lifestyle facility deck。

2 – 3

Bedroom

2

Bathroom

1

Block

Discover why Lighthauz is one of The Light City’s most promising freehold investments

Layout

Gallery

Location

Summary

Property Details
Location
Gelugor
Devloper
Exsim
Property Type
Commercial under HDA
Total Block
1
Total Unit
673
Total Floor
57
Tenture
Freehold

Get Your VVIP Package now

You might want to look

REGISTER YOUR INTEREST NOW

Disclaimer. This serves as an invitation to get response from public and register only and is not to be treated as an offer for sale. The information contain herein is subject to change and cannot be part of an offer or contract. All renderings are artist’s impression only. All measurements are approximate. While every reasonable care has been taken in preparing the visual, the developer cannot be held responsible for any inaccuracy. All the above items and packages are subject to variations, modifications and substituition as may be required by the authorities or recommended by Artitect or Engineer.
©️ 2024 by penangestate. All Rights Reserved.

Scroll to Top